三鷹市牟礼1丁目土地
京王井の頭線「久我山」駅徒歩14分
☆整形地
☆参考プランあり
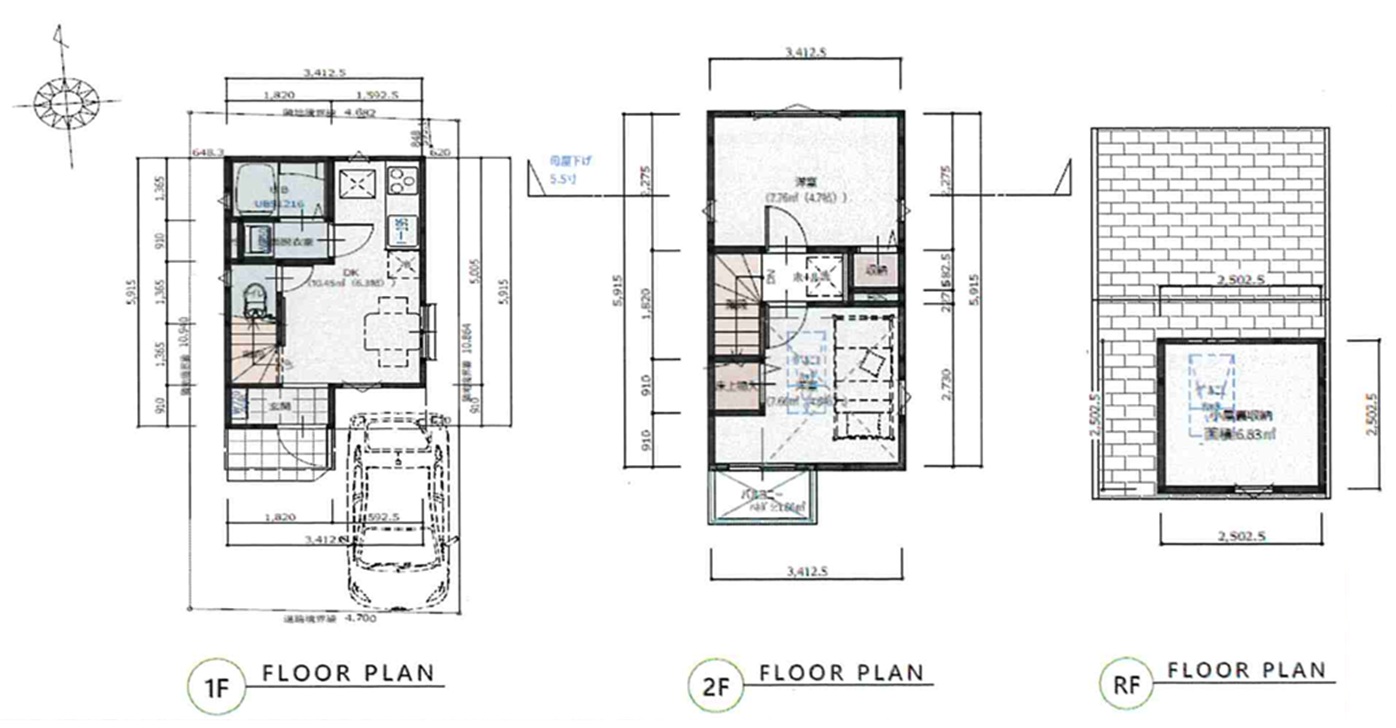
【参考プラン】延床面積38.91㎡
| 種目 | 最適用途 | ||
| 土地面積 | 51.12㎡ | 権利形態 | 所有権 |
| 借地期間 | 借地料・保証金 | ||
| 地目 | 宅地 | 建物延面積 | |
| 都市計画 | 市街化区域 | 用途地域 | 第一種低層住居専用地域 |
| 法令等制限 | 地勢 | ||
| 接道状況 | 南側1項5号 | 私道負担面 | 持分有 |
| 建ぺい率 | 40% | 容積率 | 80% |
| 現況 | 更地 | 引渡 | 相談 |
| 消費税備考 | 取引形態 | 仲介 | |
| 設備 | |||
| 備考 | ※参考プランは、変更になる場合があります。 | ||
●現況と図面が異なる場合は、現況有姿とさせていただきます。
●映像は物件の一部を撮影したものです。物件の契約にあたっての最終判断はご自身の判断に基づいて行ってください。

