大田区東蒲田1丁目借地
京急本線「梅屋敷」駅徒歩5分
☆特区民泊にて運用中
☆想定表面利回り 約21.16%
■2025年1月リフォーム内容
クロスの張替え・CF張替え・畳の張替え・新規浴室ドア・電気設備工事・消防設備工事
■什器備品
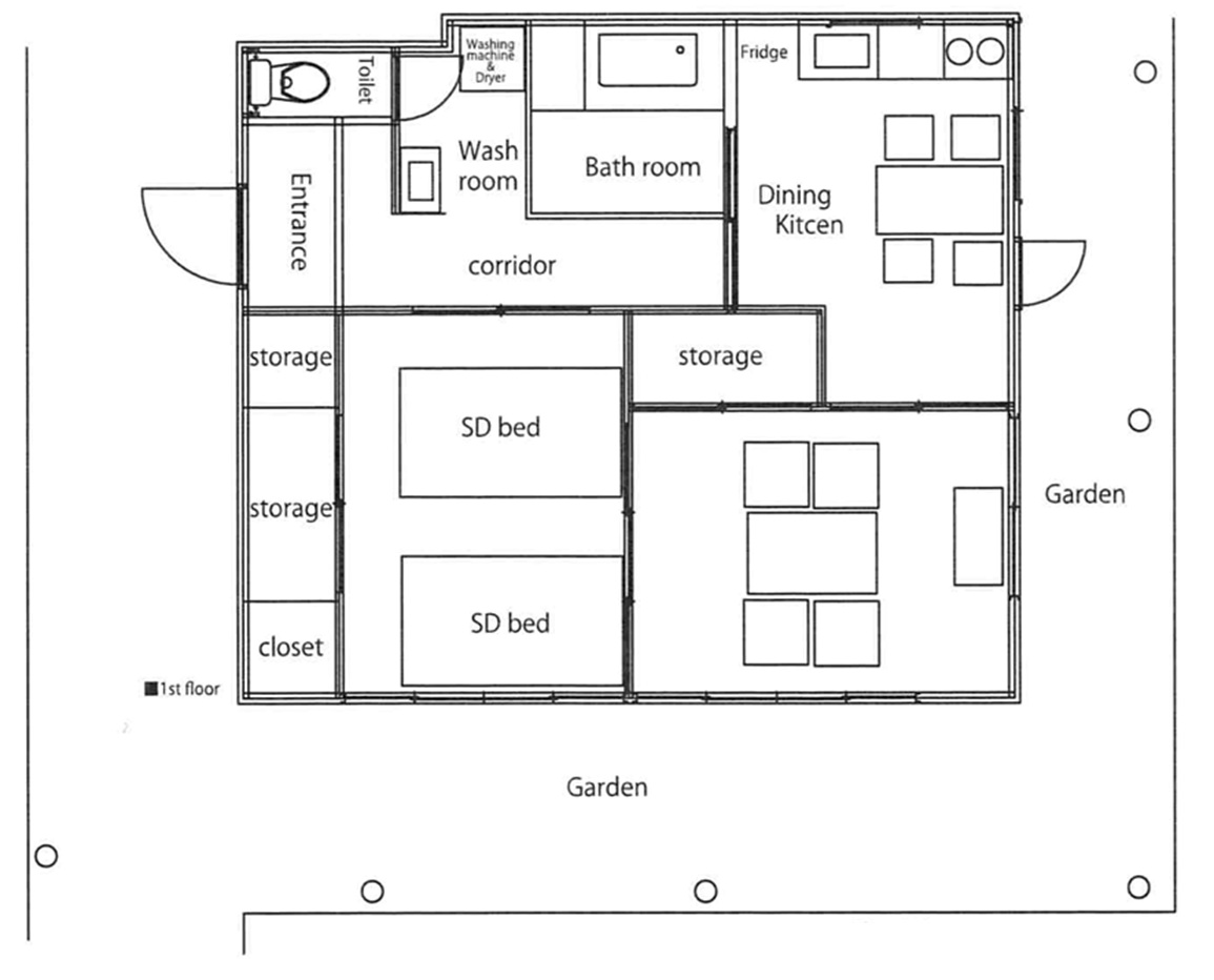
エアコン3基設置・セミダブルベッド2台・座卓・座椅子・チューナーレステレビ・
冷蔵庫・洗濯機・衣類乾燥機・炊飯器・IHクッキングヒーター・ダイニングテーブル
| 用途 | 種目 | 中古戸建 | |
| 建物構造 | 木造 | 階建・階 | 平屋建て |
| 築年月 | 昭和54年3月 | 間取り | |
| 土地面積 | 97.63㎡ | 建物延面積 | 46.57㎡ |
| 権利形態 | 借地権(旧法借地権) | 地目 | |
| 借地期間 | 令和3年12月1日から令和23年11月30日 | 借地料・保証金 | ※地代/26.626円(月額) |
| 都市計画 | 用途地域 | 準工業地域 | |
| 法令等制限 | 車庫 | ||
| 接道状況 | 私道負担面 | ||
| 建ぺい率 | 60% | 容積率 | 200% |
| 現況 | 民泊運用中 | 引渡/入居 | 相談 |
| 消費税備考 | 税込 | 取引形態 | 仲介 |
| 設備 | 東京電力・公共上下水・東京ガス・インターネット光 | ||
| 備考 | ※告知あり ※未接道 再建築不可 | ||
●現況と図面が異なる場合は、現況有姿とさせていただきます。
●映像は物件の一部を撮影したものです。物件の契約にあたっての最終判断はご自身の判断に基づいて行ってください。
